作者:喜物喜家
大部分人对精装房改造,着重点都在于软装,一般是通过改变墙体颜色或着重增加某些软装元素,进行低成本的改造。
重庆这个女孩不同,她拿到房子的第一天,就联系了施工队,第二天就将精装部分全部拆除,进行一个彻底重装之旅。
前后总共花费60万,终于打造出集美貌、智能、收纳于一体的dream home!其中厨房装修的很多干货,非常值得抄作业,屋主对于细节的绝对掌控,让我这个强迫症看完都不得不佩服。
加之屋主是一人独居,所以在布局上,只需考虑自身的喜好和体验,这也让整屋个性化更明显。对于打算独居的人士,也不妨提前学习一下深度宅女的梦之家是如何打造的吧!
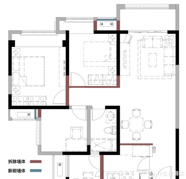
01户型图
原始户型就是普通的小三室,面积是78平,不过整屋采光一般,且厨卫空间都很小,过道还浪费了不少面积。
既然要彻底改造,就有了重新布局的机会,屋主也针对上述几点,进行一 一解决。

采光不好,那就拆除次卧的实体墙,改用玻璃,补充室内不足的光线。同时将生活阳台和厨房打通,就拥有了一个完整充足的厨房空间。

过道面积部分并入次卧内,门洞前移,增加主卧衣帽间的储物量。再把客厅的阳台封入室内,增加室内空间,还满足了屋主阳台浴缸的小愿望。
下面我们来看具体实现得如何~
02玄关
屋主是一人两猫生活,一进门,就有两只神兽夹道欢迎,等待铲屎官伺候投食~

从户型图可以看出,玄关的空间其实比较小,门边是很小的换鞋凳,紧邻着顶天立地的格栅鞋柜。

我们只有从厨房内,可以瞥见玄关一二,在后面交代客厅的时候,才会看到屋主一个整体的设计和构造。
尽管如此,一人住的玄关,仍然做到了“应有尽有”,格栅鞋柜也充分考虑到鞋子需要的通风条件。像这样的细节干货,后文中更多~
03半开放式厨房
我个人觉得独居最有幸福感的事情,就是可以做饭。小喜曾经一人独居的日子里,在并不是很好的环境下,也会在周末给自己煲上喜欢的汤。香味从厨房蔓延全屋,这是一个人的烟火和感动。
显然屋主更幸福,满足可以做饭条件的基础上,又将厨房做了一个智能和便捷的大升级。

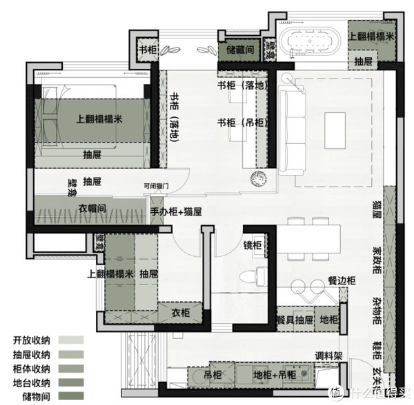
我们先看厨房布局,双一字形,一个人做饭空间上无敌幸福。(补充一点全屋定制使用的丹麦风情木色,相比普通的原木,更浅,也更有真实的质感,用在厨房真的很温暖。)
同时为了整体性更好,厨房吊顶也采用生态木格栅,颜色和柜体也很接近,很有日式风的感受。

下面我们来看厨房内部暗藏的各种机关吧!先是灶台和水槽上方吊柜,全部安装了松下的拉篮。吊柜空间不再鸡肋,用来收纳各种小锅和干货,实用又方便。轻轻一拉就能拿到,再不用踩着凳子拿东西了。

安装集成灶,满足各种烹饪需求,一个人住,也可以轻松做各种美食~
厨房一进门左手边,原始是烟管,看似毫无收纳的可能,但是机智的屋主,是不会放过这么好的位置的~

为了利用起这一空间,屋主定制了只有15cm深的开放式超薄柜,不用破坏墙面空间,也照样做收纳。

纵向空间看着很小,实际用起来容量非常大,用来储存常用的干货、调味瓶、调料等,方便又好拿。

中下两格,墙面还安装两块洞洞板,正好可以收纳常用的厨房工具。勺子、铲子、剪刀、削皮刀一应俱全,挂起来一目了然。
我个人觉得对于小厨房来说,有一个这种超薄柜,简直是救星级别的存在~非常佩服屋主对空间的利用。

接着来看厨房烹饪区,集成灶下方,也有很小的空间,大部分人家会用封板封上。
不过,你懂的,在屋主这里,是不容许空间浪费这种事情发生的!
做不了抽屉,就做下翻式小储物抽,放点垃圾袋、一次性手套、抹布啥的,不香吗?

接着,最让我头皮发麻的,就是这个小拉篮。位于集成灶和水槽之间的夹缝,空间小难利用,换我直接用封板封上了。
然鹅,屋主竟然安装一个宜家的马斯麦调料拉篮,来放置常用的各种玻璃杯。打开顺手就能拿,来亲戚朋友取用也方便,关上就隐身,一点也不凌乱,真的绝!
杯子控却觉得难收纳的朋友,快来抄作业吧!

这还不算完,在左侧靠近原始生活阳台的位置,屋主分别做了两个嵌入式冰箱。大冰箱用来存放生食,小冰箱放熟食饮品。
减少占用空间,也更美观(这才是真正的嵌入式~)。对于非常宅又喜欢囤积食物的人来说,羡慕这两个字,我已经说够了!

再来看厨房右侧,主要是操作台面,下部安装了全套的洗碗机,智能方便,解放双手。

注意细节的朋友们,应该看到洗碗机上方的餐具小薄抽了,也是利用洗碗机和台面之间的缝隙安装的,只有8cm的高度,日常放个餐具什么的足够了。
接着来看屋主可以细致到什么程度?

靠近洗碗机的位置,屋主专门留出一个橱柜开放区。中间安装电饭煲活动抽,煮饭时抽出,平时隐藏在柜内。电饭煲完全不用拿出来,隐身存放,不落灰也不占台面。
下层的开放区安装了一个不锈钢的活动拉篮,用来做临时的食物储存区,特别是对于一些土豆、大蒜、红薯等,不方便放入冰箱,堆地太难看,放在这里就妥了。

洗碗机右边的柜子,安装了软水机,一些剩余的小空间,用伸缩杆做隔断,收纳一些厨房杂物。
可以说,你能想到的,想不到的厨房收纳机关和技巧,屋主全部都想到了,并且全部实现了。

最后来看厨房的小窗口,是一个人的小水吧,日常煮茶,冲个咖啡,小日子美滋滋。
04餐厅
餐厅紧邻厨房,前面提到厨房的半开放式,在这里就能完全看明白了。屋主在面向餐厅的位置,把厨房开了个窗户,设计一个小吧台。
补充厨房内部采光,来亲友作客,做饭时也不耽误彼此交流沟通。

一个人在家,做完饭可以直接放吧台上,坐在高挑的吧椅上就能完成就餐。吃完通过吧台放在台面上,再直接塞入洗碗机,一气呵成。

原木和纯白的搭配也恰到好处,简洁明亮又非常温馨舒适。

从客厅我们可以看到餐厅的全貌,真正的利落温暖。
大家也可注意到一侧全屋定制的整体柜体,这是客厅的重要角色。
05客厅
客厅的整体布局很难用一张图直接说明,屋主做了一个电视背景墙的完整柜体效果图,我们就看全了从玄关到客厅的全部设计。

先是我们开头我们提到的格栅鞋柜,紧挨着屋主设计了杂物柜、囤货柜、家政柜、猫咪的跳板柜以及猫爬柱、猫爬架。完整一体,完美无缺。

因为主要的收纳柜体都在过道和餐厅位置,所以客厅完全没有大柜体的压抑感。
灰色的布艺沙发,风扇吊灯,远处的绿植,都把自然轻松的和风氛围拉满。

连贯的猫爬柱和猫爬架造型,给客厅带来童趣和个性的体验。

两只小猫咪,可以敞开的跳跃攀爬,在主人用心设计的小家里,滋润生活。

最喜欢的是,是吊柜的圆孔设计,钻进去探出头的小猫,满满安全感,又无敌可爱。
屋主完全不吝啬对两只猫咪的宠爱,我想这是人和动物相处的最好状态,是陪伴,也是家庭的成员。

对于极度宅居爱好者,充足的储物柜太有必要,因为自己有一堆需要囤放的生活用品以及零食。

把柜子塞满,和内心被填满一样,安全感和幸福感由心而发,家也成为宅居的天堂。

最后,再来看看屋主这个梦想之阳台浴缸吧!休息的时光里,放上热热的水,泡上一壶茶,就可以在沐浴中,欣赏窗外美景,电影里的画面在生活中实现啦!
浴缸不用的时候,可以盖上盖子,就是完整的飘窗,这个创意真的满分!
06书房
前文提到考虑采光,将书房墙面换成玻璃,我们在餐厅的位置,其实可以看到黑色边框的玻璃连接到客厅处。

且转角处的推拉门可以完全打开,将书房和客厅连贯一体,通透明亮。

书房内,做了整面的开放式书柜设计,并且每层内部全部安装灯带,一种图书馆的既视感。

站在书房内,可以看到全貌,我个人的感觉,非常大气明朗。待在这里,就是一个人的天地。极高的书本储物量,对于书虫来说,真的很爽。

书桌选择简洁的设计,单檐可以放置摆件和临时需要的资料书籍等。一些杂物全部放置在墙面的洞洞板上,整齐划一的布置,太治愈了。
07主卧
从书房的隐形门,可以进入主卧。隐私感瞬间增加,让独居的人更有安全感。

主卧床依旧是全屋定制的榻榻米,地台设计,简洁利落,又方便收纳。

靠窗墙面故意使用墨绿色,调节整体日式的氛围,避免审美疲劳。

主卧的最大特色在于三面长虹玻璃门后的步入式衣帽间,没有一块板,全部使用宜家的博阿克塞系统。

一套下来只要两千多,节省预算不说,最大的优势还在于环保,没有一点甲醛。还完全可以根据自己需要入手组件,实用性相比普通衣柜更强,也更便捷。

一年四季的衣服,一个步入式衣橱全部搞定,容量非常惊人。仔细观察上下两张图,还可以发现,屋主还利用隐形门背后的空间,定制了两块洞洞板,用来挂包包、帽子,随时隐身,也随时拿取~

超白的长虹玻璃门,也让整个衣柜更加朦胧精致,对于小户型又想要衣帽间的仙女来说,这种设计再合适不过了。
08次卧
次卧只作为亲友小住,所以装修上更加简单,榻榻米做床,可以储物可以休息,可以喝茶看书,囤积爱好者的最佳选择。

最后来看这位细节控屋主的小爱好吧!

在书房和次卧的走道尽头,屋主特意设计了一组嵌入式的手办柜。

存放了屋主从初中以来全部喜欢的各种手办,极具收藏和纪念意义。

萌趣可爱又多姿多彩,每一个都是时光的纪念,也是家里最好的摆件。

手办柜底层是猫咪之家,“莫负春光”的横批,也表达了屋主对生活的态度。
我想一个人生活的幸福元素,在屋主这里全部实现了。一份喜欢的工作,一个精细打造的家,两只可爱的猫咪主子,一个值得付出和痴迷的爱好。有热爱有牵挂,也有幸福和温暖,才是这78平的小家,最令人羡慕和喜爱的!
撰文、编辑/小喜
