
首钢工业园区改造是中国北方最具雄心壮志的工业遗产改造项目,旨在让这座百年历史的钢厂回归市民生活,使城市与永定河重新连接起来,并恢复自然环境,对城市地区影响范围达10km²。整个项目于2010年左右启动,计划在2030年完成,包括一系列适应性再利用和能源转换项目,以体育、休闲、文化和其他公共项目为引擎。作为北京2022年冬奥会北京赛区的场馆分区之一,首钢园区及京能园区包含1个竞赛馆和5个非竞赛场馆。首钢滑雪大跳台是其中唯一的竞赛场馆,它将举办北京2022年冬奥会的单板滑雪及自由式滑雪大跳台(男子、女子)比赛,产生男女共4枚金牌。


首钢滑雪大跳台是全球首个坐落在工业遗址内的冬奥会场馆,也是首个滑雪大跳台的永久性竞赛设施。首钢滑雪大跳台的规划设计将冬奥会场馆与原大型钢铁厂的一个关键部分改造结合起来,包括制氧厂、冷却泵和空分塔,沿工业晾水池—群明湖岸线布局。单板滑雪赛道位于由4座标志性冷却塔形成的风影区内,其结束区和近6000座观众席的一部分沉入湖面标高以下,制氧厂北区则改造为北京2022年冬奥会观众服务中心。


单板滑雪大跳台是冬奥会一项相对较新的运动,于2018年平昌冬奥会上首度成为冬奥会的正式比赛项目,并在阿尔卑西亚跳台滑雪中心(Alpensia Ski Jump Stadium)举办。这个竞赛场馆早在2009年平昌尚未获得举办权时便已建成,用以满足申办奥运会的需求。


相关研究表明,由于缺乏赛后利用计划、缺乏场馆建设统筹,该场馆在可持续方面饱受质疑,而跳台运动的专业性和大跳台的专门性特征,使非专业竞技者较难直接使用,亦是客观存在的可持续难点,如无前期对场馆及附属设施的可变性规划设计,极有可能出现如平昌奥运会后阿尔卑西亚跳台滑雪中心长期空置无用的现象。这些“前车之鉴”促使首钢滑雪大跳台从规划、设计、建设和运营等各方面积极回应超大型体育赛事带来的场馆规划设计的可持续问题。


为了回应北京2022年冬奥会全面可持续性的诉求,首钢滑雪大跳台及群明湖周边的规划设计以首钢工业遗产的适应性再利用为契机,在宏尺度上,以重构北京西部天际线、延续首钢工业记忆为目标;在远尺度上,注意奥林匹克运动结合北京西部的经济发展以及工业园区的产业转型升级需求,以景观营造、水体养护、慢行系统构建等为核心,实现工业区域的生态恢复;


在中尺度上,一方面,跳台本体的中国文化元素表达有助于增强城市居民的文化认同感与自信心,另一方面,对工业厂房的改扩建则体现了对工业遗产保护和利用问题的回应,以全季利用为运营理念,平衡奥运场馆设施建设的赛时与赛后可持续,并开放园区,以文化活动服务城市与社区居民日常生活;


在近尺度上,对赛道剖面的可变性保留、裁判塔空间的安全性与舒适性、部分可拆除看台、装配式建造方案的考虑,旨在最大程度地激发运动员的竞技水平,同时满足裁判员的安全性和舒适性需求,从建设与使用的各方面践行可持续,使首钢滑雪大跳台及群明湖周边改造,能够为北京城市更新提供一个可供参考的积极案例。










项目图纸
△项目区位图
△高线公园总图示意
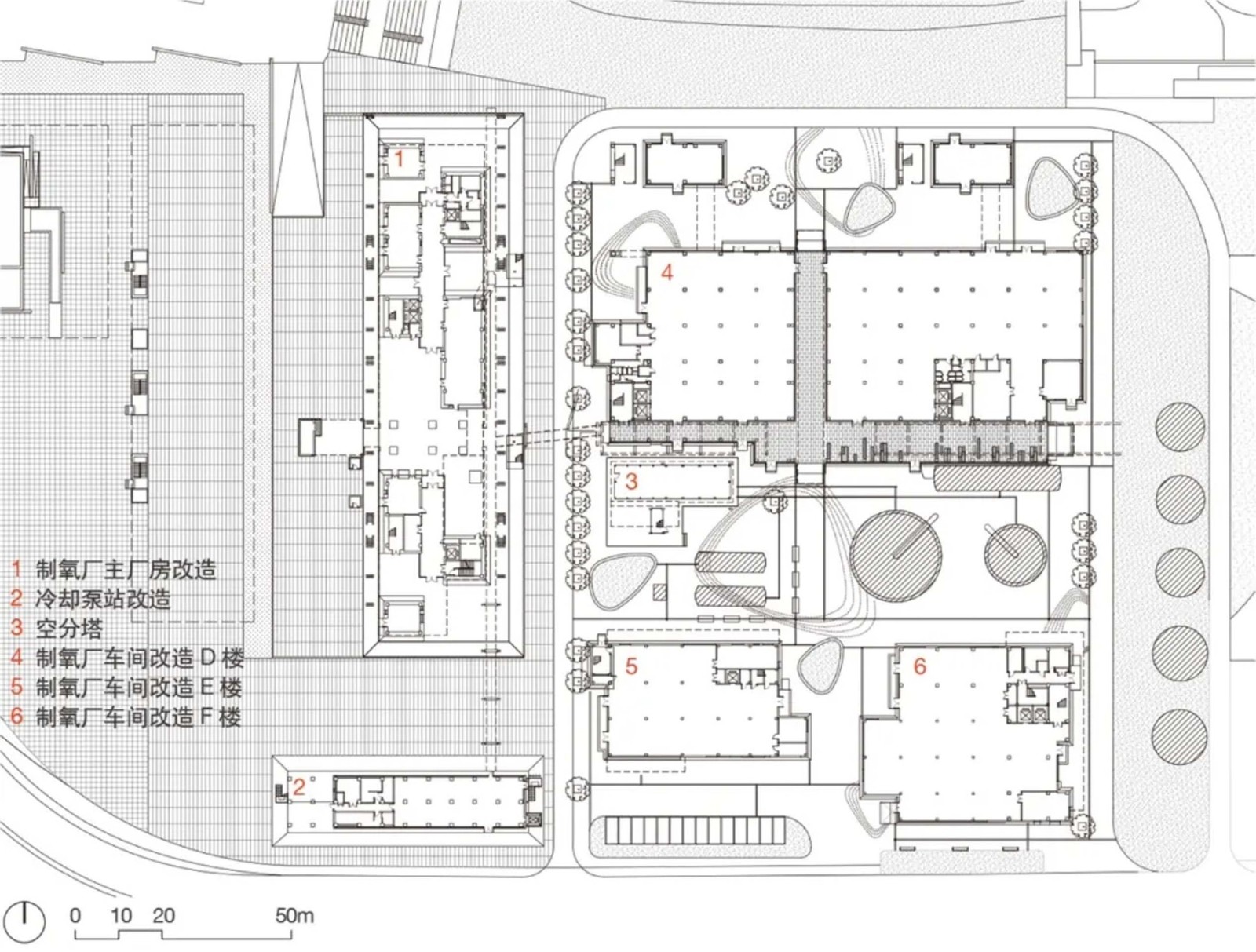
△总平面图
△制氧厂048地块平面
△制氧厂048地块南立面
△剖面图
△剖面图
△首钢滑雪大跳台可变竞赛剖面曲线
△大跳台及局部防风防护网意象草图
△跳台与冷却塔关系示意
△改造前后群明湖岸线变化分析(蓝色为新增临岸亲水空间)
项目信息
建筑设计 : 清华大学建筑设计研究院
面积 : 33000 m²
项目年份 : 2019
主创建筑师 : 张利、窦光璐、江曦瑞、Bai Xue、潘小剑
竞赛配套设施及制氧厂北区改造 建筑设计团队 : 李果、潘安平
竞赛配套设施及制氧厂北区改造 结构设计团队 : 徐青、翟莎莎
竞赛配套设施及制氧厂北区改造 暖通设计 : 贾昭凯、刘慧丽
竞赛配套设施及制氧厂北区改造 电气设计 : 王磊、钟新
制氧主厂房改造方案设计 : Michele Bonino、都灵理工大学
竞赛剖面曲线及竞赛工艺顾问 : Joe Fitzgerald Davide Cerato
首钢大跳台本体 结构及竞赛工艺咨询 : 戈建
首钢大跳台本体 施工图项目管理 : 孟繁星
业主 : 北京首奥置业有限公司
景观设计 : 清华同衡规划设计研究院朱育帆工作室
照明设计 : 清华大学建筑学院张昕工作室, 玛斯科照明设备有限公司
结构设计 : 北京戈建建筑设计顾问有限责任公司
施工图合作团队 : 杭州中联筑境建筑设计有限公司, 北京首钢国际工程技术有限公司(旧改结构)
地点 : 中国,北京
