50平米的房子虽然小,但却处处透露着温馨感,再重新的装修一番,就会有别样的感觉,因此在现代风格的衬托下,全屋的效果真的是美呆了!

客厅说明:整体是四白落地,没有造型,二人位沙发放置在靠卧室一侧的墙边,背景两幅画做点缀,颜色多彩但不算艳丽,放置在白墙上显得刚好。
电视柜和茶几是同一系列的,整体木色搭配白色,电视上方有小隔板,在可以储物的地方都用来储物,客厅区域整体是统一的木色。

餐厅说明:四人的餐桌椅,墙边是“井”字型小隔板,方便放些东西,原木色系餐椅搭配摆放,色彩上和谐统一,提升了整体用餐氛围。

厨房说明:把厨房做成开放式的,一个原因是厨房的窗户可以透进来阳光,给客厅增加些亮度,另一个原因是在视觉上增加整体面积,增加通透性,厨房进门右侧是冰箱,其他地方在能打柜子的地方都打上了柜子,增加储物空间。

卫生间说明:墙面通铺黄色瓷砖,窗户也不算小,透进来阳光,可以使卫生间整体看起来很温暖,用心的设计,满足了业主对生活品质的追求。

卧室说明:和客厅一样,没有什么造型,非常简单,床头和客厅家具是同一系列,床品颜色搭配很简单干净,看起来很舒适,床对面是打的隔板,利用这点小面积,可以在上面放些日常用品或者书籍,预留充足的收纳空间,凸显主人家的生活品味。


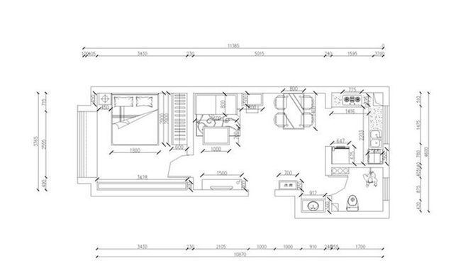
针对这套50㎡一室一厅房子装修现代风格效果图,您觉得本案的设计与搭配如何?为此,将全屋结构优化后,再利用精细的布局规划,为业主呈现多功能、高品质的生活居所。
