姑娘花36W买26㎡loft,为省钱自己装修设计,前前后后硬装只花了5W,却让小房子变得温馨舒适,她是如何做到的?今天一起来看看。
26㎡loft户型

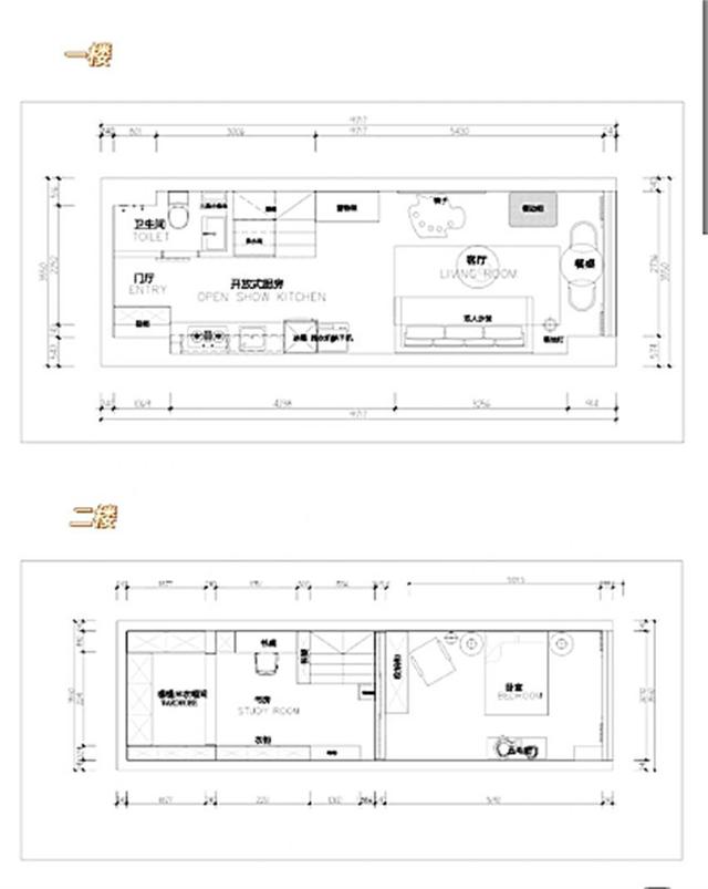
Loft总面积35.9㎡,但套内仅26㎡,层高4.5米,长条格局,户型总体看还算不错。
装修前室内实景

改造前
室内全毛坯,无隔层,整个空间采光不错。为了节省开支,姑娘们没请设计师和装修公司,自己做设计、买材料,直接找来比较靠谱的工人进行装修。

重新搭建隔层,改造线路、做顶面、铺瓷砖、刷墙......前前后后忙碌了大半年,终于换来了理想的小居室。
装修后实景
一层
玄关

入户一组玄关柜,挂衣区、换鞋区、储物区合理分布,满足使用。
厨房

往里走是一个3㎡开放式厨房,奶油色调设计,格外清新;灶台、洗漱台、冰箱依次排开,整洁有序。
卫生间

卫生间外侧装了谷仓门,颇有欧式风情;内侧不到3㎡,做了干湿分离,淋浴区、洗漱区清爽舒适。
客厅

往里走是客厅,总面积10㎡,虽然不算大,但软装十分用心。餐边柜替代电视柜,方便收纳和日常使用。


靠墙摆放一组多功能沙发,打开就是床,家里来人客人,也有休息的地方。投影仪能随时投放到墙上,夜晚观影氛围感超棒!

由于没有阳台,所以在客厅一侧叠放了洗衣机、烘干机,使用相当顺手。
餐厅

靠窗附近摆放了一张餐桌,平时一人坐在窗前吃饭,也是一种享受。
二层:

过道区域的大鞋柜
顺着楼梯往上走,二层分为卧室、书房和榻榻米3个区域:
卧室

卧室内白墙搭配木地板,温润自然,一张床+梳妆台+床头柜,就是全部的家具,尽管设计简单,却一点都不觉得压抑。
书房

转角书柜+书桌,收拾得干净整洁,平时一个人在这里办公自由、安静。
榻榻米

最内侧原本是飘窗,不过为了提高空间利用率,改造成了一个榻榻米+衣柜,既能储物又能休息,相当实用。
结语
虽然整套loft空间并不大,但在用心设计和装饰下,看起来格外开阔通透,温暖治愈,一个人住在这里,绝对超级自在,这简直是梦中情屋啊!
(图片来源于网络,如有侵权立即删除)
