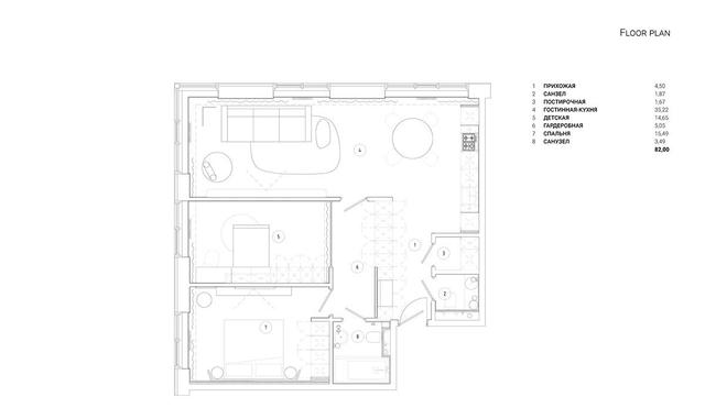
小户型对于国内人群来说非常的刚需,但其实在国外也是一笔不小的财产。今天笔者“串”到一套莫斯科的82平小户型,非常清新有趣的小家。每一个空间内都有着可圈可点的精彩,甚至每个空间都有属于自己的色彩,国内人对此既惊叹又欢喜:同样的小户型,为什么他家那么多色彩,却一点不杂?接下来就跟着笔者来看看吧。户型图

经过交涉得到的平面设计终稿。目前可看,户型端正大方,但可利用率不高,所以需要一手好设计来规划。原本宽敞、通亮的入户处,硬生生的多出了一堵墙柜,既增加了收纳又保护了卧室的隐私。

平面图或许看得不是很清楚,那么透视图就相对来说要清晰了很多。尤其是玄关那一块儿的墙柜,S形的设计,给玄关、卧室双方都增加了收纳功能。内部细节

一打开入户门,纯天然的木质地板、橘粉色的柜体,你难道没有被吸引吗?反正笔者我是被吸引了。过道尽管缩窄了一半,但正因为缩窄才有了巨大的收纳柜,利用橘粉色做柜门点缀,增加简约里的时尚气息。隔壁半透明的玻璃门,将休息区与活动区隔开,一下宁静了。客卫生间

紧邻玄关的两间紧闭的门扇,其中一扇就是客卫。全面的水磨石墙地砖通铺,让小面积的空间得以延伸,不做分割不妨碍视觉;橘粉色的墙挂浴室柜,黑色的五金点缀其中,增加了不少的时尚高级感,不太现实的艺术之家。洗衣房

另一扇门后的洗衣房,与客卫是两个完全不同的风格取向。米白色的洗衣房,一整体的洗衣柜,堆叠的洗衣机和烘干机。空间狭窄,但却一点也没有拥挤之意。餐厅

远看是橘粉色的玄关,近看是大理石的圆餐桌,与厨房墙壁的爵士白保持一致;延伸了空间的整体感,避免视线被缩小。厨房

浅咖色的橱柜门板,淡化在整体空间中的同时,也添加了不同区域内的色块。梯式的吊柜方式,可以避免碰头的尴尬,也增加了台面的亮光度,暖黄色的灯光柔和空间温度。客厅

L型的客餐厅,因狭长所以尽可能地减少宽厚的家居。花雕式的吊顶是外国最为常用的手段,简单大气还具有时代的味道;灰蓝色的窗台板、原木色的地板、淡粉的沙发、橘红色的单人椅点串,色彩很多却也很精彩。

双行线的电视柜,将电视机嵌入其中,不仔细看根本不知道还有电视机的存在,再加上左右两侧都是玻璃移门,就更不容易分辨了。儿童房

电视墙后最近的儿童房,简约大气的硬装,薄荷绿的色彩穿插其中,各种各样的小玩偶装饰其中。不过最精彩的是,小树屋一样的儿童床和简笔画一样的壁纸。

小孩子重要的是玩耍的空间,所以不需要太多的收纳柜体,这也是为什么要把外面的玄关缩窄一半,将收纳全部移到卧室门外,增大室内的活动空间。主卧室

粉红色的天花板,几乎是没人敢做的。青黑色的卧室床、深蓝色的电视柜,沉稳、安静;与屋顶的粉形成一个鲜明的对比;带有曲线的镜子、落地灯,让空间更有线条感。

旁边的整体衣柜,自画的一对小人,让沉稳安静的卧室,添加了一丝丝的趣味儿。主卫生间

再看尽头的主卫生间,连这里都很精彩。大理石的墙地面整体,蓝绿色彰显出活泼的浴室设计,弧形曲线的浴室镜、浴室柜、洗手盆,与旁边的大浴缸形成一个对比;壁挂式的马桶上满满的收纳,以求实用性。
