
地址 | 北京 门头沟小区
户型 | 四室
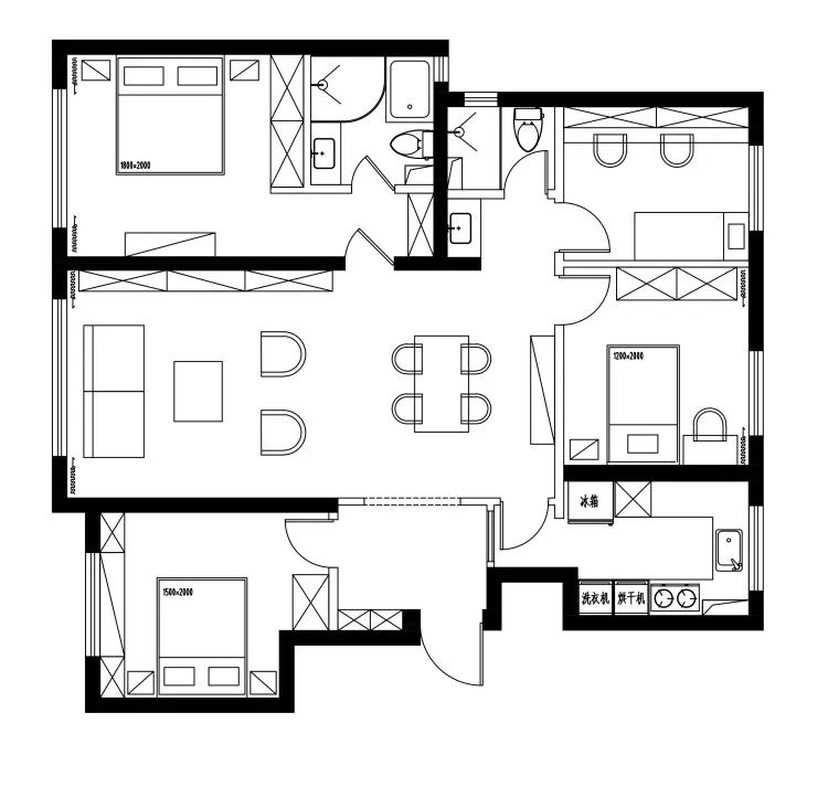
面积 | 150㎡
预算 | 45万
“我的家既要田园牧歌的自然,也要丰富多彩的浪漫。”
这是女主人对新家最初的规划。
女主人从事旅游工作,见多、识广,有着独特的自信和审美,明确的喜好和高接受度。因此她家的设计也足够大胆,大胆的配色、大胆的融合、大胆的尝试。
设计师没有把自然砍断装进室内,而是让家和自然互通,把家纳入大自然内;没有局限于常规的低调色彩涂刷空间,而是用厚重和贵族气息装扮出与众不同的家。
风格上,设计师将美式乡村、法式复古、中国风进行了部分融合,最终呈现出一个多元素、多色彩、多气质的法式中国风。
色彩上,屋主本身也喜欢这种高贵复古的多色彩空间,所以设计师做了一次大胆的探索,用厚重的色彩交错叠加告诉大家,色彩丰富的家一样可以是放松、舒适的,甚至承载更多。
改造重点:
1.本案是坐北朝南的3居室,室内的格局整体比较规整,承重墙很多,所以整体拆改没有做大的变动。重点在门厅位置做了调整;
2.原本的户型结构没有玄关但入户门口有转角且空间富裕,为了方便日常生活和完善格局空间,利用轻体墙在入户门位置隔出独立玄关;
3.原厨房空间也比较小,设计师改变了厨房的入户方向,外扩一部分空间,让厨房内部的空间更大更舒适。


# 玄关
从打开门的第一眼,家就是另一个世界

本案的原本户型结构没有玄关,但是考虑到主空间的私密性以及玄关的储物,且入户位置空间有所富裕,则利用新建轻体墙打造出一个独立的玄关空间。

法式罗马柱造型垭口设计、半墙的墙板造型、去色的山水壁纸,让步入家门店一瞬间就走进了中世纪的典雅生活。
玄关垭口也刚好像油画框一样,框选出一幅红绿层叠的画作。
# 客厅
从餐厅走到客厅,家就是烈日暖阳与青草绿意的结合体

客厅与餐厅虽属同一个空间,但在风格色彩上我们却做得非常大胆的对比设计,相对于中式复古元素更多一些的餐厅,客厅则是更倾向与法式宫廷复古。

● 地毯:ZARA HOME
稍沉稳复古红墙、自然鲜活的草绿书柜、华贵靓丽的宝蓝沙发,以及中性柔和的单人沙发,将客厅空间的配色层叠、丰富地展示出来,映衬着窗外的真实的自然风光,像在郊外小镇的古堡中生活。

设计师选择色彩的足够丰富,所以就弱化了装饰的复杂性,留有空间的呼吸感,唯一做了较为精细的装饰就是白色顶面上做了雕花石膏灯盘配铁艺烛台吊灯。一红一绿、一简一繁、一疏一密,透着细节的精致。
# 餐厅
从门厅踏入客餐厅,家就是豁然开朗的世外桃源

客厅和餐厅是一个大的空间整体,为了空间视觉的开阔与通透,开放式的客餐厅设计是最优选择。从玄关的缩影进入客餐厅,也是踏入一个开阔自由的空间。
餐厅与客厅虽没有做隔断和吊顶的具体区分,但利用红与绿的对比色彩将两个空间做视觉区分。


● 餐桌:北欧表情,JUNO
● 餐椅(左):北欧表情,TOBE
● 餐椅(右):原始原素
餐厅空间选择了浓烈热情的复古红为主色,利用简约的实木藤编桌椅、精致的黄铜吊灯、以及鲜花做修饰,营造出自然、浪漫的氛围情调。
用KENA的复古实木餐边柜,北美小镇的做旧檐顶吊柜来装饰餐厅墙面,紧邻厨房的铁艺黑框玻璃门,实用与装饰性兼备,让餐厅空间的元素更加丰富多元。

明艳动人的红色会增强人的食欲,简约干净的装饰能提高人的幸福感。墙面的威尼斯水乡装饰画也增添了餐厅的舒适感。
# 厨房
在自然界提炼生活


原本的厨房空间不到5㎡,外扩后的厨房空间其实也仅有5.5平米左右,调整后的厨房,利用黑白拼花地面和半墙结构的设计增加视觉延伸感,空间会更舒适。
另外,厨房新建的墙面上我们没有封死而是开了一扇窗,以教堂的五彩琉璃掐丝玻璃为原型,设计师定制了一扇拱形水波纹彩窗,对称厨房的另一侧外窗,让空间更通透。
水波纹、彩色光线、绿顶,自然元素的融入,在厨房做饭也是在享受生活。
# 卧室
从客厅进入主卧,家就是宁谧安逸的贵族城堡

主卧的设计延伸了客厅的法式复古,区别在于主卧更加注重氛围的营造和空间的通透,以及舒适的体感。



实木地板减小了卧室的声响,橙色的床品增加了卧室的温馨,暗色床头和衣柜让入睡更加香甜有安全感。
在床头背景墙上不仅以暗调为底色,还选择了铁艺窗景的壁纸花纹,让主卧视觉空间更加绵长,而且有一种置身于大自然之中的古堡内,静谧舒适,与世隔绝。

复古是永不过时的流行,复刻经典就是将最美好的事物留在眼前。卧室床脚选择了一款中式木刻雕花黑底收纳柜,细腻的花纹与庄重典雅的黑色搭配在一起,尤显尊贵气质。


次卧空间没有很大,想要保证空间的自由感室内的家具就要足够轻薄,所以次卧是设计上,选择了窗边定制柜做简单的收纳,铁艺骨架床减轻床的厚重感。
# 卫生间
一半浓情一半典雅

主卫做了防水漆和墙砖的拼接设计,红色由墙面延伸至顶面,纯白的墙砖则与地面的黑白拼花地砖相衔接,纵向拉长空间的视觉效果。

卫生间的红色与餐厅的红相同,也是在色彩上与其他空间相联动,有一种空间的整体关联感。黑色和金属色的点缀,给主卫增加的轻奢的质感。
# 书房
于光影中冷却思绪

三间卧室的结构,足够满足一家三口和偶尔会来小住的父母,以工作和阅读为主需求的书房便不需要床铺。隔板书桌将收纳和装饰结合,也最少的占用空间。简约的木质中式沙发满足小憩的需求。
书房是一个相对安静的空间,在颜色上选择蓝灰色,加上百叶窗帘的光影效果,让书房更沉稳静默,可以静心于工作。
设计师:郭海洋@ PChouse家居画报
