上海80后小夫妻的森系婚房,50㎡空间被手办填满,看完都想住进去
业主是一对80后的小夫妻。两个人结婚不久正沉溺于甜蜜的二人世界,并不着急要宝宝,所以两个人的生活还是比较的自由和浪漫。
两个人的婚房面积不大,只有50个平方。但是位于上海的繁华地段,对于夫妻两个人来说,日常的活动还是比较的方便和轻松。
男业主喜欢收藏各种手办还有模型,所以,对家中的储物空间要求比较高,女主人喜欢比较浪漫简单的生活方式,希望自己的家足够的清爽和自由。

房屋户型:一室
房屋面积:50平方米
装修预算:25万
所在城市:上海
主要建材:线板、木皮、喷漆、大理石、黑铁漆、铁件、玻璃、木地板、壁纸

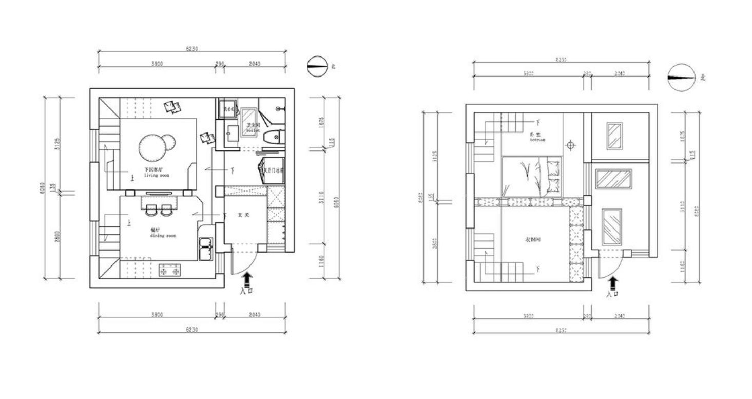
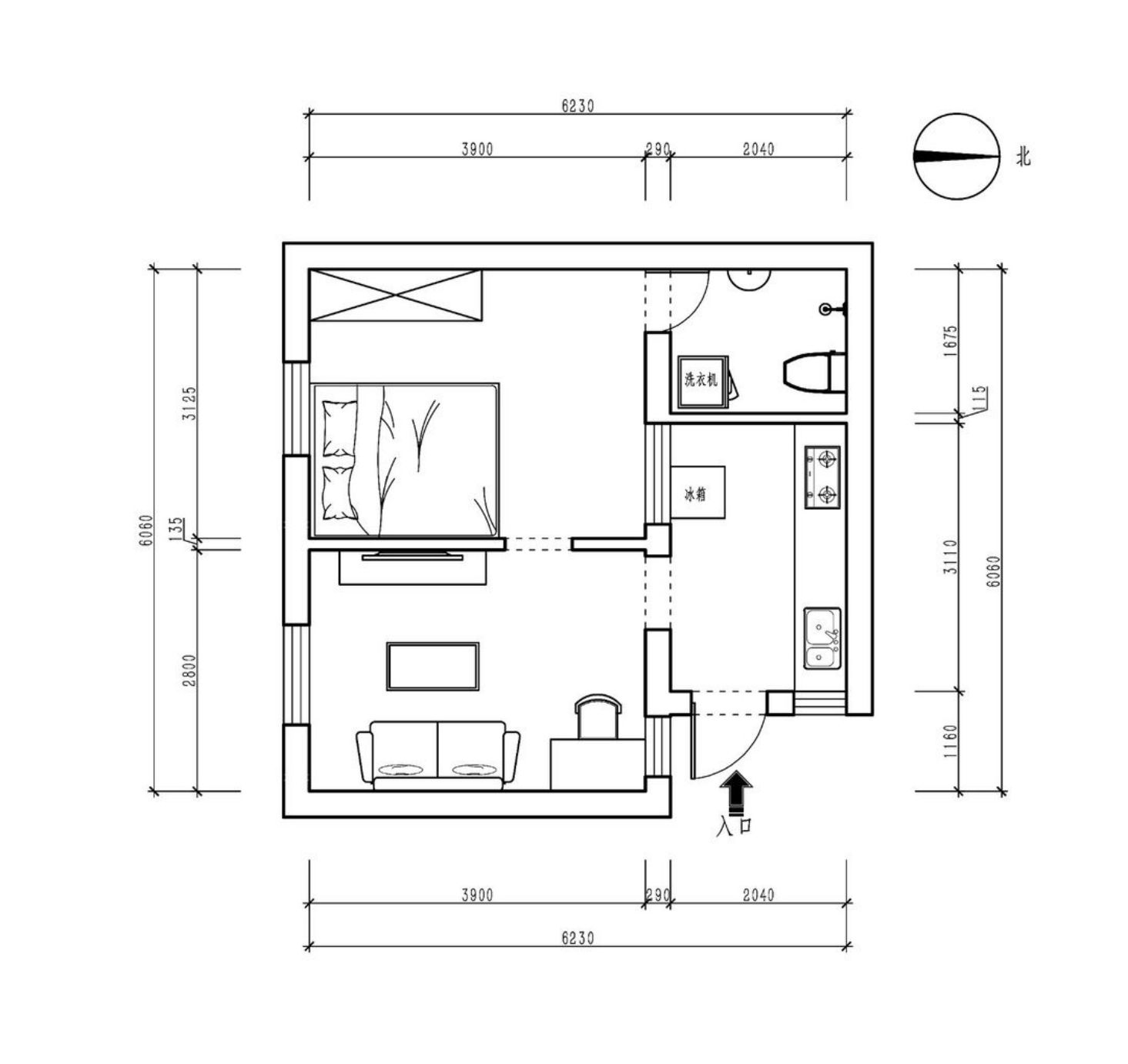
【户型图】

一:原始户型的面积比较小,缺少足够的收纳空间显得格外的杂乱。
二:卫生间包括在卧室之中,家里来了客人使用起来非常不方便。
三:进门口就是厨房,空间功能性不强,影响日常使用。


一:在玄关增加独立的收纳柜和换鞋凳,同时规划出一个宽敞的杂物间。
二:餐厅和客厅之间增加大容量的收纳柜,摆放男主人的各种收藏品。
三:利用原始房屋的结构增加一个独立的二层空间,满足多样的使用需求。

【玄关】

设计重点:立体设计让空间更流畅
玄关增加了独立的天窗,从而保证空间的通透,鞋柜也一分为二,一部分作为完全独立的收纳空间使用。另一部分起到了换鞋凳的效果。

整个玄关保持了空间的独立,避免了空间压抑以及正对着客厅的尴尬,让整个空间更加的流畅和立体。
【客厅】

设计重点:空间层次感更加明确
设计师将客厅的地面向下挖,周围的高度进行保留,打造成下沉式的客厅,再搭配大理石元素,让整个空间更加的开阔和立体。

客厅和其他功能区之间利用台阶做缓冲,让客厅可以保持空间的独立,不会影响会客区的功能和氛围。
【卫生间】


设计重点:隐藏空间更私密
卫生间改造之后进行了位置上的调整,特意选择了谷仓门保证空间的私密以及趣味。


内部空间更加的细致和完善,洗衣机和烘干机也被叠放在卫生间之中,大大提升了空间的利用率。
【厨房】

设计重点:收纳空间更加齐全
厨房的地面特意选择了六角形的拼接瓷砖进行铺设,避免日常油烟难打理的问题,同时也巧妙规划出厨房的独特个性。

现场定制的橱柜和吊柜解决了厨房的收纳问题,让空间拥有了大容量的格局。同时开放式的酒架更加的高级,各种精致的杯子和美酒,全部可以存放其中。


在橱柜对面专门设计了一面多元化的背景墙,下方专门留给业主作为记录的软木墙。


墙体下方还专门设计了猫咪的通道,上方则是透明的玻璃展示架,可以摆放男主人的各种收藏品。


利用轻薄的隔断墙打造出客厅和厨房的独立氛围,也让空间更加得自然。


男主人的各种收藏品就变成了空间之中最好的装饰,处处都彰显出男主人的品位。



通向二层的楼梯为了避免过于压抑,扶手选择了玻璃元素,再搭配浅木色的台阶,让楼梯也变得更加鲜活和自然。



家里的猫咪也有了自己的玩耍空间,平时也可以充分的释放自己的天性。
【卧室】


设计重点:打造包围感极强的睡眠环境
额外增设的二楼就是业主的睡眠空间,为了避免吊顶造成视觉上的压抑感,特意选择了拱形的造型。同时设计了大面积的开放式置物架,让整个卧室也变得更加自由和灵活。


改造过程1。



改造过程2。



改造过程3。



改造过程4。

整个空间的设计格外的抢眼,将这套50平方米的小户型打造出别墅的体验感,实现了男主人的收藏梦。
【图片若有侵权,麻烦私信删稿】
