作者:家装札记
越发觉得客厅可有可无,不仅占据了大量空间,而且功能也在逐渐弱化。以至于很多人开始尝试去客厅化设计,打破固定式的设计,将客厅转换成其他空间。比如这期案例,屋主夫妻就做了大胆尝试,不要客厅、不要沙发茶几,以餐厅作为空间核心,一起看看效果吧!
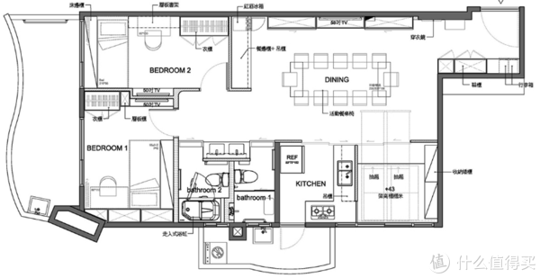
原始结构图
套内面积92㎡,长条户型,格局并不是很理想,空间局促且利用率不高,无法应对夫妻二人日常生活所需。
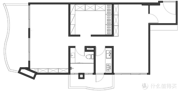
装修平面图
重新梳理空间,拆除部分墙体,规划出3房1厅2卫,以满足日常生活。大胆去客厅化,不要沙发茶几,以餐厅作为空间核心。

玄关设计
温润的木色映入眼帘,木纹脉络在地面和墙面现身,桦木合板和木质地板,点亮迎门玄关。墙面选用乡村风格挂件装饰,适切留白落下温馨端景,增添几分温馨气息。

鞋柜齐平墙面轴线,辗转展开连排柜体,桦木合板划开一道水平线,以悬浮姿态拓出随手置物平台。还有板材侧边层层拼接的肌理,同步为行李箱觅得归处。

餐厅设计
没有客厅以餐厅作为中心,温暖木质地面漫散着温馨韵味。木地板蔓延入室,定调了全屋基底。特意选用防水卡扣式地板,为的是将木色推入厨房内。

餐厅取消了大篇幅铺装的电视墙,以一座书墙彰显个性。推拉门在开阖之间,注入柔和采光、卸下实墙封闭感,形成不受限的居家型态,以自由的平面配置,展开疏而有密的日常光景。


延续多功能想法,伸缩餐桌赋予了空间恣意伸展的余裕,加上餐边柜和藏于滑门后机能,无论两人用餐、阅读,或多人聚餐、聊天,任由屋主定义家的可能性。

和室设计
屋主偏爱日系风格,撷取传统和室门穿而不透、弹性分区特性,延长光照范围,创造第二道采光面。大胆将功能区靠窗配置,随着滑门的移动,空间表情也随之改变,打造出空间的多种形态。


和室延续原有窗框限制,架高榻榻米保留了可开关的窗面,使日光流淌依旧。滑门框界出自成一方的弹性,满足了休闲、娱乐、客房的作用。


放眼望去,小巧的榻榻米,承接了各式生活姿态,于下也存放着各种日常物件,运用抽屉式设计扩充储藏容量,让居家物件都有了容身之处。

卧室设计
夫妻俩的卧室座落屋后,紧邻采光良好的阳台,应一人一房需求,将原本一大房一分为二,并透过微幅推移墙面深浅,争取房内收纳功能。


当场景转至男主人卧室,置顶落地的衣柜则是临窗筑起,这一切都是灵活利用了隔墙深度,既打造双向用途,更有效化解柜体份量感。

卫生间设计
外置洗手台的做法,源自设计师将互动性视为要点。在细细梳理生活动线后,以双槽洗手台为中介,区分各自步调的日常习性,也聚合了生活对白。
复古水磨石为温朴木色抹上明快视觉,两侧更镶嵌雾面玻璃,不仅吸引了浴室内光线,也由内而外地透散着温润光色。

移步入内,石纹瓷砖沉淀了绵延一室的木质调性,造就隐密时光。顾及往后行动便利性,以步入式浴缸和扶手,让房子足以相伴两人到老。

【写在最后】
大胆的装修尝试,诠释了新的生活方式。即便舍弃了客厅,却依旧环绕在书香、日光和家人的陪伴下,以灵活弹性的配置,描绘了眼前单纯舒适的退休生活。
