作者:家装札记
在喧嚣的时代,舒适解压的家居环境,似乎更适合当下的生活需求。没有华丽的色彩、没有浮夸的造型,只有实用和沉稳。比如这套使用面积86㎡的三居室,用最“土”的材料,装出了最满意的效果,简直就是理想的家。
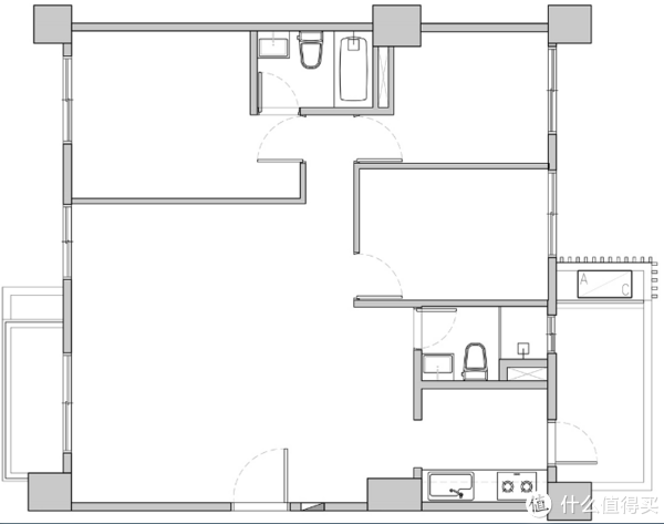
原始结构图
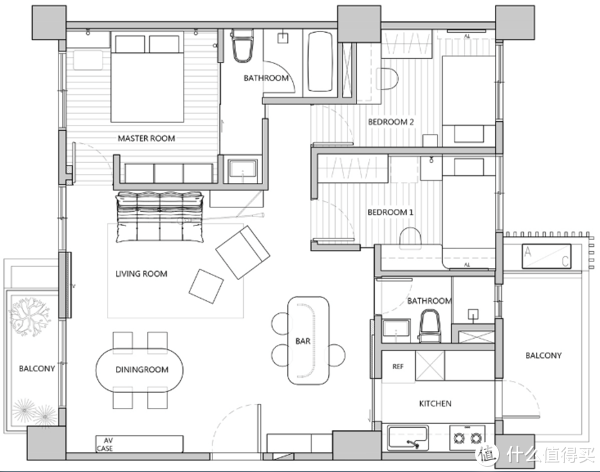
使用面积86㎡,三房两厅两卫布局,户型方正,但动线存在一些不合理之处,比如没有独立玄关,主卧需重新调整格局,让动线和空间更完善合理等。
装修布置图
尽可能保留原始格局,以微小的改动达到最理想的效果。调整主卧进门方向,避免门对门的尴尬格局,同时收整主卧空间,合理放置梳妆台。

办公区设计
没有独立玄关,推开入户门将、公共空间尽收眼底。运用截然不同的陈列方式,展现别具一格之美。利用光影效果,拉伸宽敞视野。

打破常规格局设定,以简朴木质长桌,框列出居家办公区。原本的电视墙,改造成储物收纳。悬吊式壁柜,既解决收纳问题,又降低了厚重感。柜体身后埋藏LED灯,暖色的灯光,渲染一层温厚微光。

客厅设计
低调沉稳的客厅,简约素净让人很放松。地面以简朴水泥砖循序渐进,粗犷而细腻。颠覆客厅既有布局,电视墙落定在两窗之间,内嵌式设计,加上柔顺的边线收拢,淡化突兀生硬感。

轻巧的家具布置,更适合当前慵懒放松的空间。深靛蓝的绒布沙发,在慵懒的空间中格外醒目。特殊涂料的沙发墙设计,镘抹得手感纹理,搭配摇臂式极简灯具,加上暖色光晕渲染氛围,推展温雅柔静视感。

餐厅设计
餐厅以墨黑色为主,与客厅形成鲜明的色彩对比,借此实现空间功能的流转。简洁无杂的空间,融入大理石的曲弧中岛餐桌,巧妙的设计不仅拥有设计感,也提升了居家情调和浪漫氛围。


厨房设计
黑色木纹美耐板砌构而起的推拉门,将厨房隐藏其后,有效划分空间又保持餐厅视觉统一。

主卧设计
微调格局后,将主卧进门调整到沙发背景墙一侧,进而实现更宽阔方正的空间轮廓。

主卧以日式素雅风格定调,褪去繁杂配色,以润白为主,原木为辅。挥别高床架的固有设定,改用床榻设计,同时降低床头背板设计,让空间高度更自由。柔软曲度设计,抚平床头横梁结构,从而淡化压迫感。

开放式的收纳设计,以纯白层架+收纳盒的组合方式,将卧室物品收归整洁,同时无碍纳入钢琴陈设,充分展示平价家居的弹性设计。

主卫设计
调整格局后,主卫变得更加合理,四件式配置,分离式布局,让使用更加舒适快捷。灵活的玻璃滑门设计,向卧室借取一片日光,提升卫浴采光效果。


儿童房设计
以沉稳墨绿色做背景,并以黑色布纹板材落下床头靠背。落地式衣柜,搭配黑色高低跳台,为儿童房增加收纳和趣味性。


一体成型的木作设计,简单流畅的书桌与背景墙,满足学习需求,同时减轻体量厚重感。简单的隔板架和洞洞板设定,轻松收纳书籍和装饰品。

次卧设计
次卧以黑白设计实现简净无压基调,摆放机动性较高的家具,为日后留下弹性可变的空间。


【写在最后】
简单细腻的设计,将空间视为最清简的背景,舍弃绚烂的配色,以墨黑、净白为主,打造耐人寻味的居家场景,营造舒适解压的空间氛围。如果是你,会喜欢这样的设计吗?
