作者:家装札记
一楼和顶楼的房子一样,存在着很大的争议,都说一楼不好,但还是有人喜欢。比如接下来分享的这套案例,屋主是个三口之家,特意买下一套带天井的老公房,室内使用面积61㎡,同时还带个20㎡的天井,看完整体装修,忽然有了想买一楼的冲动!
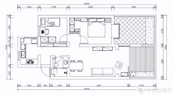
原始结构图
长条户型格局,室内面积61㎡,附带一个20㎡的天井,还是相当不错的。原本是一室两厅的格局,考虑到实际需求,改成了两房一厅。
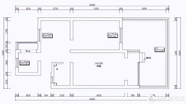
装修平面图
以最小的改造,满足居住需求。将原有餐厅封闭改造成儿童房,同步调整主卧门洞,空出过道,餐厅移至客厅,实现两房一厅布局。阳台内包,扩大空间让采光和景致更直接。

门厅设计
入户门厅与过道重叠利用,利用墙垛之间的距离,设计吊柜和换鞋柜,提高玄关收纳能力。橘色黑板墙做背景,可供小朋友涂鸦,释放天马行空的想象力。

厨房设计
厨房位于门厅左侧,面积虽小,但功能齐全。U型布局+高低台面设计,最大程度提高厨房空间利用率,同时也提高使用舒适性。
除此之外,还放置了洗碗机、洗衣机、冰箱和消毒柜,真正做到了“麻雀虽小,五脏俱全”。


为了空间利用最大化,连夹缝空间也不放过,购买了可移动置物架,摆放各种厨房瓶瓶罐罐和厨房调料,使用方便不说,厨房台面也整洁。

客厅设计
客厅略带复古况味,各种复古风格的家具,为空间增添艺术氛围。轻巧的桌几,取代厚重茶几,带来更灵活的空间体验。
大面玻璃推拉门,隔断室内外的同时,也引入了充足的采光和庭院自然景致,即便宅在家也是一种享受。


电视墙不做任何造型,考虑到实用性,将电视柜替换成半高矮柜,平衡视觉感,收纳能力也得到提升。盆栽绿植的点缀,让居家生活更有清新活力。

餐厅设计
餐厅非常的古朴醇厚,厚重的餐桌+餐边柜,搭配浅色棉麻靠背椅,恰到好处的视觉传递。厚重的餐边柜,自己设计找厂家定做,成品效果非常满意,储物容量还是非常可观的。

老旧款式的长凳,仿佛记录着岁月的流逝,相比椅子来说,还是挺节省空间的,小户型可以考虑长凳。

卫生间
卫生间采用水泥质感的墙砖,铺陈整个空间,粗旷质感蔓延,续写沉稳基调。浴室镜下方,藏有灯带,为日常洗漱提高便利。

空间有限,放弃了硬体隔断设计,选择了相对灵活的浴帘,空间更宽松自在。

主卧设计
主卧紧挨着庭院,拥有绝佳的视觉体验。内部装修以低调柔和的色彩为主,营造内敛舒适的空间氛围。
床头采用不对称设计,蓝色的床头柜+深色的斗柜组合,告别呆板视觉感,又进一步提升主卧收纳水平。


看似不起眼的飘窗,在一番简单精心布置之下,却有着意想不到的效果。绿植+木质台面+米色靠枕,让飘窗成为休憩场所。

儿童房设计
原有餐厅改造成儿童房,空间不算太大,考虑到实用性选择高架床,和餐边柜一样,自己设计找厂家定制,尺寸和收纳两不误。
高架床下方就是玩耍空间,展示柜+小沙发,让小朋友可以尽情享受属于自己的娱乐天地。


庭院设计
附带的20㎡天井,经过一番精心设计,变成多少人梦寐以求的庭院,各种花花草草,彰显着勃勃生机。
加上休闲桌椅的摆放,让庭院变得更加悠闲放松,对于喧嚣的城市来说,闹中取静真的是一种享受。


每天早起,拉开窗帘那一刻,就可以感受到大自然的美好和旺盛的生命力,简直让人无法拒绝。步入庭院呼吸新鲜空气,顺带给花花草草浇浇水,那叫一个惬意。

【写在最后】
案例看完不禁感叹,这才是生活啊!一家三口,一套小房,一个庭院,想想就是那么的美好。努力工作,陪伴家人,享受惬意,这才是该有的生活姿态。
