“农村小院”改造,对很多年轻人来说,是敢想不敢做的事。

△小红书搜“农村”“农村小院改造”
对当下很多都市奋斗的“小镇青年”来说,高额的生活成本无法让他们在大城市安家,但因为所学的技能只能在此发挥,这一份确定性让他们留了下来。
我们今天的主人公是一对姐妹,她们在上海奋斗3年后选择裸辞回到安徽老家,花了150天实现5万块钱改造农村小院计划,给外婆外公带来一座地中海乡村风格为主基调的农村小院。


荒糖姐妹
坐标安徽阜阳
梅梅,26岁,室内设计师
甜甜,23岁,自由模特

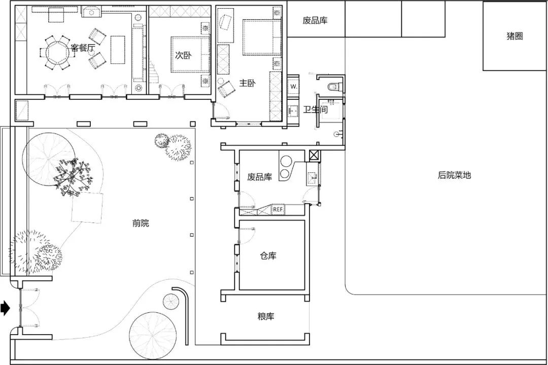
小院面积500㎡
房龄:30年
房屋为农村自有
装修花费 5万元
“我自己是在外婆家长大的,也因为自己是设计师的缘故,所以一直以来都想把外婆的房子好好地改一改……最近几年发现他们老得很快,想用自己的技能切实地改善他们的生活……其实裸辞压力挺大的,还有车贷要还。”梅梅说。
刚回来时,她们对未来的生活是焦虑的,不过马上就被频繁漏雨的屋顶、旱厕、糟糕的采光、房屋保温等一系列关于房子的具体问题包围了。

想美美改造农村小院
却差点被旱厕打败
由于预算只有5万元,她们决定先解决房屋漏雨问题。在原有屋顶结构上刷上防水涂料,主屋屋顶选用了红色的新型金属瓦,减小雨滴的声音,在原有青瓦上焊接龙骨,直接将新瓦固定上去,美观的同时也起到隔热保温的作用。

△房子后院的菜地
原本的屋顶内部是芦苇材料,时间久了会掉土,她们在附近的加工厂以9毛一斤的价格买了600块90*10cm的模板,一共花费了760元,花了3天时间结束堂屋的吊顶,保留了梁和檩的结构美。

·卫生间
在解决完漏雨的问题后,她们把预算划给了厕所,她们无法忍受村里的旱厕,旱厕对于老人也是很不安全的。做足功课后,她们向政府申请了免费的化粪池改造。

“我们先把厕所改造好,他们才会派人来改化粪池。很多农村的房子都有这个问题,我们申请了之后不少人才知道有这个项目(向政府申请免费的化粪池改造)。”
她们重新搭建了一个三分离卫生间(台盆区、淋浴区、马桶区),在马桶旁增加了无障碍扶手,方便老人如厕。过道的地方添加了一个洗衣区,更换了热水器和自动洗衣机。



“市面上好看的防滑瓷砖都太贵了。”她们为了节省费用,在二手软件上买了闽南旧砖作为地板砖,配上银色复古水龙头。淋浴区建了蹲泡式浴缸,实现了在农村的浴缸自由。


·厨房
为了增加采光,她们外扩墙体,同时涂料也调配成了暖黄色,增加厨房光线的反射率。梅梅说:“暖黄的色调能让人感觉温暖,特别是在厨房,被这个色调包围,做啥好像都挺好吃的。”


接着,为9㎡的厨房设计了一条动线:洗菜、切配、烧菜、和面区,把洗切烧的动线理顺。梅梅说:“农村的厨房最重要的是储物空间要大,将所有的东西立面储物化后,厨房的储物量会多好几倍,后方还有一个9㎡的粮库。”


考虑到安全问题和老人做饭的习惯,她们保留了原有的柴火灶。如今厨房有完整且连贯的洗切配流程,有电热水龙头、安全的电和足够的储物空间。

△她们一起做安徽地锅鸡
·客餐厅

把堂屋的窗打成落地窗,在立柱的基础上做了四个拱门。

直接在水泥地铺上spc锁扣木地板,让整个房间从冷色调变成暖色调。

壁炉是客餐厅的灵魂。考虑到客餐厅不大,她们买了一个内嵌的小壁炉。冬天室外下着雪,一家人围炉夜话很温馨。可以听他们讲讲过去的事情,一起看电视、讨论剧情,或者烤烤红薯。

原本杂乱的偏厅被改成客餐厅西厨台。



·卧室
改造旧家具,在老旧衣柜里加上晾衣杆。把二三十岁高龄的梳妆台重新刷一次。把废弃的架板拆开,选择好看的旧竹子,刷上木蜡油做成床头……

把以前的木质隔栅拆除,建起隔墙,把卧室和客厅彻底分离。拆除老旧窗户,换成双开玻璃门。用钢管架起一个小阁楼。平时储放物品,过节时还可以变成客房。


·院子

重新刷了墙面和门。设想在前台的花园里种植很多植物,但是发现养不活,最后去当地的花卉市场直接买了现成的。




“越是预算少,越是要把功能放在第一位,解决最大的问题。软装可考虑可回收材料替代,比如旧的门和材料都可以利用。装饰性的东西,装饰画、相册,尽量选用不花钱的材料进行改造。植物选择当地的,便宜又能养活……”
以下是她们改造的详细费用:






改善老人居住条件
也许是一种刚需
荒糖姐妹决定从上海返乡的重要原因,是想要照顾生病的外婆。考虑到房子是老人常住,她们在此次改造中做了一些适老化改造:
1.在卧室门口安装了一个感应夜灯,让老人上厕所时更方便;
2.院子里设计了壁灯,由于老人怕浪费电,她们选择了太阳能的灯;
3.马桶边和淋浴房安装了扶手,让老人起来时更好借力。尽管外婆用不惯马桶,但考虑到她高血压,偶尔会头晕,马桶还是比传统蹲厕要适合老人;
4.把一些老人用习惯的电器更新升级(比如洗衣机),并教会他们如何使用;
5.将家里的东西按老人的使用习惯,分功能进行收纳。

△甜甜教外公使用洗衣机,外公很快就学会了
荒糖姐妹的外公外婆已经70多岁了,但她们表示“其实老人和小孩一样,他们对新鲜事物也充满好奇,设计得好看他们也‘虚荣’也爱炫耀,主要是能做到尊重他们的需求和审美。”
此次的改造主要针对前院。“后院的棚子放了一些纸皮、饮料罐……外婆卖废品挺快乐的,就让她继续收集吧。他们不太喜欢别人动他们的卧室,我们也只是做了简单的收纳,让他们取东西更方便。”

△外婆外公的卧室一角。在卧室安装了有线电视,可以躺着看电视,他们不怎么玩手机,不识字,也不能用网络电视
改造过程中的另一个难点是,年轻人与老人的审美有所不同。“外婆外公会舍不得原有的红木沙发、重朱红色的八仙桌……但是在整个改造过程中,他们也慢慢看到我们有独当一面的能力,从之前的嫌弃到认可我们的改造。”梅梅说。
菜地是外婆外公的快乐一角,他们两个人一起打理,皖北春天的时候干旱比较严重,所以他们会浇水,一并把前院的花浇了。农闲的时候,他们也能做做自己喜欢的事情,非常幸福。
和老人一起住得迁就他们的生活习惯。冬天时老人家用不惯加热器,夏天时老人怕太凉,所以一直没有安装空调,只能安慰自己“皖北夏天挺凉快,用风扇也行”。做饭时老人的口味偏清淡,她们偶尔会开车到县城开小灶……
此次改造也让荒糖姐妹第一次深刻感受到老人家很害怕孤独。老人不相信她们会一直陪他们,但那些话只会对着两姐妹的父母说。她们只能向老人解释,除了出差外,她们都会回来。


被改造的不只是房子
或许是两辈人的生活方式
“很多老房子还远远不到要被拆除的时候,但它们存在很多功能性的问题,完全可以在不破坏房子原有结构的基础上,通过加固、软装、再收纳等方式改善生活环境。”梅梅说。
农村改造目前还是一片“荒芜地”,对设计师们来说远比设计城市里的商品房有发挥空间。造厕所的时候,荒糖姐妹引起村里的老人围观。“他们不知道可以申请免费的化粪池改造,想知道坐厕是怎样的,看到我们买二手的瓷砖也会疑惑……”

△村里的老人围观荒糖姐妹造厕所
很多年轻人也想为老人改善生活环境,但是他们认为老房子改造不值得花太多的钱,把预算压缩到2万~3万元。“他们已经意识到自己的老房子存在功能缺陷问题,却不愿意去改变自己的生活环境,很多人就止步于此了。”
有很多人来找她们咨询小院改造。“许多人认为改造就是翻新成商品房,但那在设计师眼中不叫改造。老房子不能像商品房一样翻修,最好的样子是在保留当地的特色、当地人生活习惯的基础上进行美学优化。”
改农村小院,改的不仅是老年人的生活,还是年轻人的生活。
梅梅相信,农村房子改造会成为潮流,会有更多人注意到农村的老房子。她将改造房子的过程发布到她的自媒体账号上,当天便上了热门,不过当时有人质疑她们“夸大农村的美好,宣扬躺平”。
梅梅说:“相较于选择自由职业,毫无目标、一成不变的上班加班,才更像是‘躺平’。”
更多人对她们做的事表示支持,很多不同地区的人邀请她们设计。借此契机,荒糖姐妹打算以后一起去不同的城市,为更多的人带去美且实用的设计。


